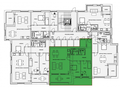
Byt P 03
PROMYŠLENÉ DISPOZICE, VYSOKÝ STANDARD VYBAVENÍ, NÍZKÉ PROVOZNÍ NÁKLADY
TO VŠE ZA ROZUMNOU CENU
Ceník jednotlivých bytových jednotek je uveden v tabulce níže. V ceně není zahrnuta cena parkovacího místa. Cena je včetně DPH.
Bližší detail bytové jednotky (výpis jednotlivých místností, půdorys jednotky, orientace bytu) získáte poklikáním na konkrétní bytovou jednotku.
| Typ bytu: | 3+kk |
|---|---|
| Podlaží: | 1.NP |
prodáno
Celková cena vč. DPH:0 Kč
| Název místnosti | Plocha |
|---|---|
| Předsíň | 14,10 m2 |
| Obývací pokoj + KK | 34,80 m2 |
| Koupelna | 3,80 m2 |
| WC | 2,10 m2 |
| Pokoj | 10,40 m2 |
| Pokoj | 11,00 m2 |
| Komora | 3,00 m2 |
| Svislé konstrukce | 2,60 m2 |
| Podlahová plocha: | 81,80 m2 |
| Lodžie | 11,60 m2 |
| Plocha celkem: | 93,40 m2 |
V 1. podzemním podlaží je umístěno 17 parkovacích míst. Cena parkovacího místa není zahrnuta v ceně bytu. Parkovací místa nabízíme za cenu 300.000,- Kč vč. DPH.
Půdorys
Řez a schema objektu












