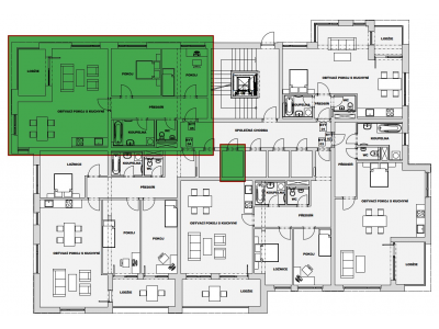
Byt P 15
PROMYŠLENÉ DISPOZICE, VYSOKÝ STANDARD VYBAVENÍ, NÍZKÉ PROVOZNÍ NÁKLADY
TO VŠE ZA ROZUMNOU CENU
Ceník jednotlivých bytových jednotek je uveden v tabulce níže. V ceně není zahrnuta cena parkovacího místa. Cena je včetně DPH.
Bližší detail bytové jednotky (výpis jednotlivých místností, půdorys jednotky, orientace bytu) získáte poklikáním na konkrétní bytovou jednotku.
| Typ bytu: | 3+kk |
|---|---|
| Podlaží: | 3.NP |
prodáno
Celková cena vč. DPH:0 Kč
| Název místnosti | Plocha |
|---|---|
| Předsíň | 11,10 m2 |
| Obývací pokoj + KK | 36,90 m2 |
| Koupelna | 6,20 m2 |
| WC | 2,40 m2 |
| Pokoj | 12,20 m2 |
| Pokoj | 11,20 m2 |
| Komora | 3,10 m2 |
| Svislé konstrukce | 3,20 m2 |
| Podlahová plocha: | 86,30 m2 |
| Lodžie | 6,90 m2 |
| Plocha celkem: | 93,20 m2 |
V 1. podzemním podlaží je umístěno 17 parkovacích míst. Cena parkovacího místa není zahrnuta v ceně bytu. Parkovací místa nabízíme za cenu 300.000,- Kč vč. DPH.
Půdorys
Řez a schema objektu















