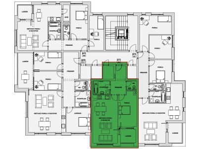
Byt R 06
PROMYŠLENÉ DISPOZICE, VYSOKÝ STANDARD VYBAVENÍ, NÍZKÉ PROVOZNÍ NÁKLADY
TO VŠE ZA ROZUMNOU CENU
Ceník jednotlivých bytových jednotek je uveden v tabulce níže. V ceně není zahrnuta cena parkovacího místa. Cena je včetně DPH.
Bližší detail bytové jednotky (výpis jednotlivých místností, půdorys jednotky, orientace bytu) získáte poklikáním na konkrétní bytovou jednotku.
| Typ bytu: | 2+kk |
|---|---|
| Podlaží: | 2.NP |
prodáno
Celková cena vč. DPH:0 Kč
| Název místnosti | Plocha |
|---|---|
| Předsíň | 8,40 m2 |
| Obývací pokoj + KK | 25,50 m2 |
| Koupelna | 5,10 m2 |
| WC | 2,10 m2 |
| Pokoj | 13,00 m2 |
| Komora | 3,20 m2 |
| Svislé konstrukce | 1,50 m2 |
| Podlahová plocha: | 58,80 m2 |
| Lodžie | 4,80 m2 |
| Plocha celkem: | 63,60 m2 |
V 1. podzemním podlaží je umístěno 13 parkovacích míst. Cena parkovacího místa není zahrnuta v ceně bytu. Parkovací místa nabízíme za cenu 300.000,- Kč vč. DPH.
Půdorys
Řez a schema objektu











